Дом за 3 месяца
Быстросборные конструкции домов
О технологии и выборе
На Западе быстросборные конструкции домов — явление вполне привычное. Подкупают они не только высокой скоростью строительства, но и вполне респектабельным внешним видом, могут иметь два-три этажа, а также легко монтируются стена к стене, составляя таун-хаусы. Их облицовывают плиткой, сайдингом, кирпичом или деревянными панелями, покрывают металлочерепицей, украшают декоративными фасадными элементами. Такой дом строится быстро — в зависимости от площади сборка занимает от 3-х недель до 4-5 месяцев. Высокая скорость строительства достигается за счет высокой степени заводской готовности: конструкция изготавливается в цехах по проекту. А на участке, на специально подготовленной площадке или легком фундаменте, рабочие собирают детали воедино: устанавливают каркас, обшивают его специальными плитами с утеплителем, сооружают крышу, устанавливают окна-двери — и дом готов. Для возведения не требуется подъемных кранов и много рабочих. Нет нужды устраивать дорогостоящий фундамент и выдерживать время для его усадки. И плюс — никаких “мокрых” процессов с кладочным раствором. Изучив особенности и оценив преимущества данной технологии строительства, заказчик выбрал продукцию ТМ СОЛИД. Подрядчиком строительства выступила компания УММ.
Рыночная тенденция (быстросборные каркасные дома)
В Украине рост рынка быстросборного каркасного деревянного домостроения в сегменте индивидуального жилья за последний год составил 18%. По оценкам операторов, средние темпы прироста сохранятся на уровне 20% в год. Наибольший спрос наблюдается в рыму и Одессе. Активизировался спрос в городах-миллионниках: Днепропетровске, Харькове, Донецке. Особенно высокий спрос на каркасные деревянные дома в Киеве и области, что объясняется чрезвычайно высокими ценами на традиционное жилье и более высоким уровнем доходов.
Проект
Для строительства каркасного сборного дома можно либо выбрать готовый типовой проект, либо заказать индивидуальный. Будущий домовладелец выбрал типовой проект: дом площадью 150 м2 с мансардой. Выбор типового проекта позволил ему сэкономить время — ведь не секрет, что разработка индивидуального проекта требует длительного времени.
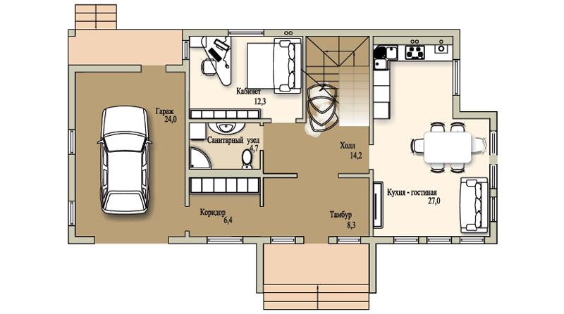
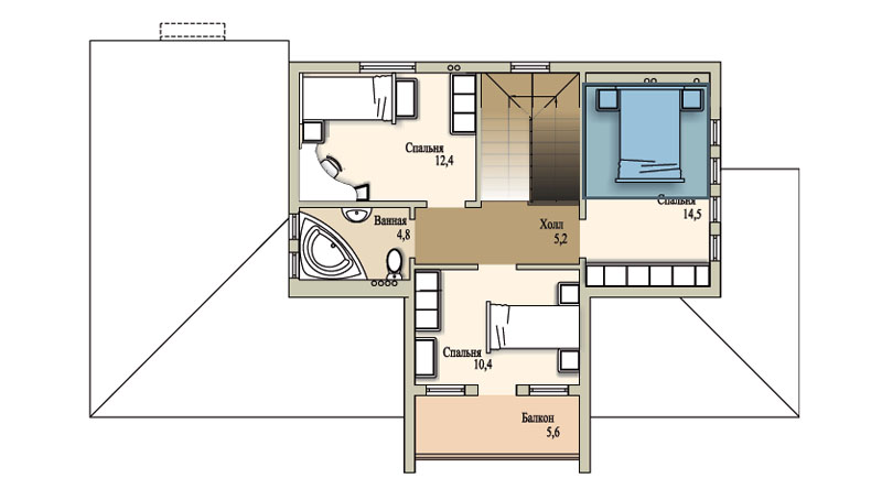
Планировочным решением предусматривались: на первом этаже — большая кухня-столовая-гостиная, кабинет, санузел и гараж. На втором этаже — три спальни и ванная.
Устройство фундамента
Каркасно-щитовые дома — легкие, и для их устройства обычно не требуется массивный фундамент. Исследования грунтов данного участка показали: для дома оптимален ленточный мелкозаглубленный фундамент. После его устройства была сделана обратная засыпка фундамента. Далее, выполнена стяжка и подведены коммуникации.
Важный акцент
Главные плюсы быстросборного каркасного дома:
- быстрота сборки (3 недели – 4-5 месяцев — в зависимости от площади)
- экономия времени и ресурсов при строительстве
- природные, экологически чистые материалы
- небольшой вес конструкции, что позволяет сэкономить на фундаменте
- возможность строительства в любое время года
- идеально ровная поверхность позволяет легко выполнять отделочные работы
- возможность скрытия инженерных коммуникаций в стены и пол
- прочность и надежность конструкции, исключение возникновения трещин и деформаций из-за усадки дома.
Стройка
В то время, как на площадке делался фундамент, на производстве, согласно проекту, изготавливался “конструктор” дома. Затем, после устройства фундамента и цокольной части, на нее был уложен обвязочный брус и из готовых изделий смонтирован каркас первого этажа. Далее, согласно технологии, снаружи каркас зашивался листами ОSB толщиной 10 мм, затем крепилась гидробарьерная пленка, за ней утеплитель — минеральная вата, толщиной 150 мм. Внутренняя поверхность зашита пароизоляцией и листами OSB толщиной 8 мм, к которым крепится гипсокартонный лист. Утеплитель, защитная мембрана и пароизоляционный материал эффективно защищают дом от сырости и влаги, и дополнительно сберегают тепло.
Сендвич конструкции стены выглядит следующим образом: OSB + гидробарьер + минераловатный утеплитель + пароизоляция + OSB + гипсокартон (внутри).
Выбор минераловатных плит в качестве утеплителя обусловлен рядом неоспоримых преимуществ перед другими материалами. В частности, минераловатные плиты негорючи, прочны, паропроницаемы, химически устойчивы, гидрофобны, долговечны, удобны в монтаже, экологичны. А также благодаря пористой структуре волокон прочно удерживают воздух, который и служит отличным теплоизолятором.
Поверх каркаса первого этажа были уложены плиты-перекрытия, затем установлен обвязочный брус, установлены стойки каркаса второго этажа, балки-перекрытия и стропильная система для крыши. Хотелось бы заметить, что на сборку “коробки” дома по времени было затрачено около 3-х недель.
Во всех несущих конструкциях, для межэтажных перекрытий, систем стен, крыши, стоек применялись деревянные клееные балки двутаврового сечения. Они обеспечивают высокую прочность всех составных частей дома.
Все деревянные элементы каркаса обработаны антипиренами (минеральными веществами, предотвращающими или затрудняющими процесс горения). Плиты OSB относятся к категории “трудногорючие”, в случае возникновения пожара материал долго сдерживает пламя. При проверке конструкции дома на пожаробезопосность стенам была присвоена категория III б.
В качестве кровельного материала использовалась битумная черепица. После возведения коробки дома стены оштукатурили. В доме были установлены металлопластиковые окна.
Внутри первый и мансардный этажи соединила изысканная деревянная лестница.
Системы жизнеобеспечения
Система отопления в доме комбинированная: есть газовый котел и предусмотрены водяной и электрический “теплый пол”. Второй вариант удобно использовать для обогрева дома в межсезонье.
Для подачи и отвода воды использовали металлопластиковые трубы.
Для поддержания в доме комфортного микроклимата была установлена мультизональная система кондиционирования, благодаря чему в помещениях был обеспечен климатический комфорт, и сохранен эстетически привлекательный внешний вид фасада.
Автор: Александра Петрова
Источник: Украинский Строительный Каталог (секреты успешной стройки)
Строительно-монтажные работы:
Похожие статьи
Деревянный коттеджПошаговый пример реального строительства каркасно-щитового дома с обшивкой блокхаусом.
Антикризисный дом: дача по каркасной технологииАлексей Бирюкович, архитектор компании АКВИЛОН, уверен: в нынешних непростых условиях следует строить недорогие, исключительно теплые и прочные каркасные дома. Оценив преимущества домов по каркасной технологии, в АКВИЛОН обратилась семейная пара, которая планировала построить дачу на берегу Десны.
Быстросборный дом: технология
Гостевой дом — пока еще не очень распространенное в Украине явление. Но если у человека есть участок, на котором расположен его дом, а приезды гостей — не в тягость, а в радость, то построить домик для них — дело чести. Ведь друзья, независимо от того, приезжают они на день или на неделю, всегда должны чувствовать себя как дома. Впрочем, есть в Украине и регионы, где гостевой домик более чем уместен. Скажем, на побережье Черного моря вблизи Одессы. Именно там, для человека, который очень любит гостей, и был построен этот дом.



















Комментарии
Оставить комментарийЭто хорошо, что дом можно выстоить за 3 месяца. Но для меня дом должен быть надёжным, теплым и уютным. Может ли данный быстро выстроенный дом похвастаться этими качествами?
Ответитьа почему бы и нет? ведь есть дома, которые делают на заводе, где человеческий фактор минимизирован.
Ответитьмне очень нравится немецкая технология. Жаль, что таких компаний у нас не много. Вот, например эти ребята монтируют дом за 1 день! У собеда у нас в Гореничах сейчас строят
http://profikarkas.com.ua/article/1-montaj-doma
Вы не зарегистрированные на сайте. Авторизуйтесь или зарегистрируйтесь пожалуйста.